Перейти к основному содержанию
Перейти на сайт жилой недвижимости
04.07.2013 - 13:11
O нас
История и Награды
Пресса о нас
Контактная информация
Видеотека "Спектр"
Общественная деятельность
Новости стройплощадок
Торговля, офисы, первичный рынок
Торговля, офисы, вторичный рынок
АРЕНДА
Инвестиционные проекты
Земельные участки
Производство, бизнесы
Базы, помещения, склады
Гаражи
Туристические базы, дома отдыха
Водный транспорт
Строительство, техника, краны, авто
Связаться с оператором
Наши партнеры
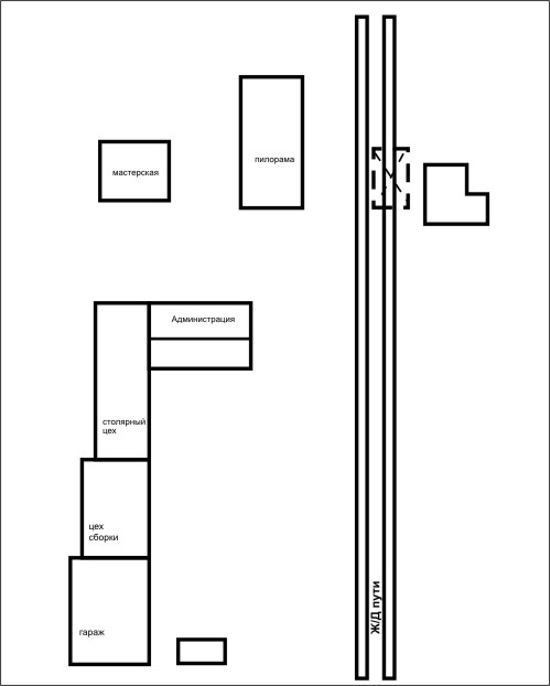
Производственная база. Планировка
г. Бугуруслан, промзона